3er Congreso Virtual de Antropología y Arqueología
ALREDEDOR DEL USO TURÍSTICO DEL PATRIMONIO HISTÓRICO: El Caso de la Iglesia de Nuestra Señora de Nazareth del Almagre (Paraíba - Brasil)
Carla Mary S. Oliveira*
RESUMEN
La Iglesia de Nuestra Señora de Nazareth de Almagre, construcción del siglo XVII localizada en la Playa de Pozo, Municipio de Cabedelo, Paraíba, Nordeste de Brasil, es un monumento tumbado por el IPHAN desde 1938, y hoy se encuentra en ruinas. En este trabajo discutimos la validad del turismo para el rescate de bienes patrimoniales semejantes, bien como para la reconstrucción de la identidad local a partir de este rescate. Por ser una actividad que puede interferir directamente en la calidad de vida de los habitantes locales, el turismo debe ser fruto de un amplio planeamiento, que considere especialmente las implicaciones sociales y culturales de esta alternativa económica para la comunidad envuelta. El rescate turístico, por lo tanto, puede ser también un medio de reencontrar el aura benjaminiana de este monumento, perdida tanto el predio original se desvinculó de actividades eclesiásticas, aun en el siglo XIX.
Palabras-clave: Patrimonio Histórico; Cultura; Turismo; Paraíba; Aura.
RESUMO
A Igreja de Nossa Senhora de Nazaré do Almagre, construção do século XVII localizada na Praia do Poço, Município de Cabedelo, Paraíba, Nordeste do Brasil, é um monumento tombado pelo IPHAN desde 1938, e hoje se encontra em ruínas. Neste trabalho discutimos a validade do turismo para o resgate de bens patrimoniais semelhantes, bem como para a reconstrução da identidade local a partir deste resgate. Por ser uma atividade que pode interferir diretamente na qualidade de vida dos habitantes locais, o turismo deve ser fruto de um amplo planejamento, que considere especialmente as implicações sociais e culturais desta alternativa econômica para a comunidade envolvida. O resgate turístico, portanto, pode ser também um meio de se reencontrar a aura benjaminiana deste monumento, perdida quando o prédio original desvinculou-se de atividades eclesiásticas, ainda no século XIX.
Palavras-Chave: Patrimônio Histórico; Cultura; Turismo; Paraíba; Aura.
Introducción Histórica
En los primeros tiempos de presencia portuguesa en tierras brasileras, la Fe católica se tornó presente, de modo físico, en diversos puntos del área litoral próxima a la sede de la Capitanía Real de Paraíba y en la llanura del río que le cedió el nombre luego de los primeros años de la conquista. Varios templos cristianos tuvieron agregadas a sus funciones de catequesis y conversión de los gentíos a función de servir como punto estratégico la defensa militar, no solo en Paraíba, también en buena parte del litoral norteño.
Observemos algunos de los detallados mapas confeccionados durante y después de la ocupación neerlandesa en Paraíba (1634-1654), percibimos que había el cuidado de que se identificasen claramente los templos que podrían ser utilizados (¿o sea que ya no serian?) como puntos de observación militar.
Amen de la Iglesia de Nuestra Señora de Guía, erguida por los carmelitas en Lucena, en el promontorio que se yergue sobre la Foz de Paraíba, otra que también parece comúnmente en esos documentos es la de Nuestra Señora de Nazareth de Almagre1, situada en la Playa de Pozo y de donde se puede divisar buena parte del acceso meridional a Foz de Paraíba, desde la Playa de Camboinha hasta la punta de Cabo Blanco.
Los religiosos de la Compañía de Jesús2 que acompañaron la expedición de conquista de la Capitanía de Paraíba y fundación de su sede, en julio de 1585, tenían como objetivo principal dedicarse a catequesis de los indígenas, dentro del espíritu misionario de aquella orden. Apenas dos meses antes, el 25 de mayo del mismo año, el Papa Gregorio XIII establecía, en la bula Ascendente Domino, que los jesuitas tenían entre sus obligaciones la conversión de las almas para el catolicismo y la asistencia espiritual a los fieles3.
|
Figura 1 - Detalle del Mapa que comprende del muelle del Viradoiro de Cide. de Para. hasta la ensenada de la Villa de S. Miguel da Bahía de Traición, final del siglo XVII. LEGENDA: 1 - Iglesia y Hospicio de Nuestra Señora de Guía; 2 - Iglesia de Nuestra Señora de Nazareth de Almagre y poblado de la Playa de Pozo. |
Figura 2 - Detalle de "Brasilia qua parte paret Belgius", mapa dibujado por Frans Janz Post, publicado como anexo a la Historia de los hechos recientemente practicados durante ocho años en Brasil, de Caspar Von Baerle (1647). LEGENDA: 1 - Iglesia y Hospicio de Nuestra Señora de Guía; 2 - Iglesia de Nuestra Señora de Nazareth de Almagre. |
En ese sentido, se justificaba el hecho de que los jesuitas, así como los carmelitas, tienen dividido su actuación en Paraíba en dos frentes bien distintos: la Del convento, colegio e Iglesia de San Gonzalo, instalados en la ciudad de Filipea de Nuestra Señora de las Nieves, actual João Pessoa, y la del convento e Iglesia de Nuestra Señora de Nazareth de Almagre, situados a orillas del mar, distanciado mas de 15 kilómetros de la sede de capitanía y cerca de 5 kilómetros de Foz del Río Paraíba.
¿Nuestra Señora de Nazareth de Almagre: Templo Jesuíta, Franciscano o Benedictino?
Casi nada se sabe, concretamente, sobre la historia de la Iglesia y del Convento de Nuestra Señora de Nazareth sobre el dominio de los ignacianos. Claro que hubo disputas entre jesuitas y franciscanos sobre el control del área donde hoy está el barrio de Pozo, en Cabedelo. A pesar que los franciscanos tuvieren recibido provisión de aquellas tierras y de la aldea indígena que allí se situaba ya en 1589, directamente de las manos Del capitán general Frutuoso Barbosa, parece que solo ejercían “sus derechos” después de la salida de los seguidores de Santo Ignacio (Mello Neto & Mello, 2000: 07-08). Con la expulsión de los jesuitas, en 1593 (Barbosa, 1994: 140-141), el conjunto arquitectónico de la Playa de Pozo, ya semiconcluído4, paso al control de los franciscanos, que allí habían permanecido al menos hasta la conquista holandesa.
Segundo Ulysses P. Mello Neto y Virgínia P. Mello (2000: 12), por 1740 la aldea de Almagre, muy abandonado por los franciscanos y ya con la denominación de “Utinga”5 - todavía mas dedicado a Nuestra Señora de Nazareth - paso al control de los benedictinos, que habían perfeccionado las obras del predio inicial erguido por los jesuitas, "mejorando sus paredes" a fin de allí realizar la primera misa abacial6.
Diferentemente de los otros templos barrocos con función catequizadora existente en Paraíba7, no hay, los entalles en calcáreo de Nuestra Señora de Nazareth de Almagre, ni una referencia a la flora local: la decoración Del arco crucero del altar principal se resume las hojas de acanto estilizadas, en tanto que los portales laterales de la a nave son adornados apenas con sencillas vieiras. La vieira - o la venera - es un símbolo recurrente del cristianismo desde las Cruzadas, representando la jornada de purificación a la Tierra Santa. Ella pasó a ser usada, después Del siglo XIII, como dístico de la Orden de San Tiago de Compostela y, por extensión, de la peregrinación a la iglesia de aquella congregación, en Galicia, al norte de España.
En toda la Europa medieval la concha estilizada de la vieira pasó a marcar la entrada de locales sagrados, especialmente de iglesias y catedrales, como una indicación de que al cruzarlos se ingresaba a un espacio santo y se conseguía atingir la trascendencia y la salvacion8.
En cuanto la Iglesia de Nuestra Señora de Nazareth de Almagre, su fachada original, que hoy está irreconocible, mas que puede ser visualizada todavía en fotos de inicio de siglo pasado, nos remite a la sobriedad de los primeros proyectos del Barroco italiano.

Figura 3 - Parte interna de la Iglesia de Nuestra Señora de Nazareth de Almagre, con el arco crucero aún de pie.
Foto de Walfredo Rodriguez, cerca de 1921/ 19229.

Figura 4 - Foto del conjunto documental existente en el Proceso de
Inventariado Federal de las ruinas de Almagre, IPHAN, 1938.
Se nota la sobriedad de las líneas del portal y de la vieira en el centro del arco superior.
Al fondo, una ventana que se abría hacia el sector oeste del predio.

Figura 5 - Fachada principal de la Iglesia de Nuestra Señora de Nazareth de Almagre.
Foto de Walfredo Rodriguez, 1927.

Figura 6 - Fachada principal de la Iglesia de Nuestra Señora de Nazareth de Almagre.
Foto de Carla Mary S. Oliveira, 1999.

Figura 7 - Diseño esquemático de la fachada de la iglesia de Nuestra Señora de Nazareth de Almagre, basado en fotos de inicio del siglo XX.
Esa característica de Nuestra Señora de Nazareth se contrapone a la virtuosidad creativa presente en las iglesias de Nuestra Señora de Guía, en Lucena, y de San Francisco, en João Pessoa, y más todavía, puede representar que la idea, de que la catequesis del gentío se debía dar por otros medios y no preferiblemente a través del apelo visual.
La posición privilegiada de Nuestra Señora de Nazareth de Almagre, en una playa de la cual se podía percibir cualquier aproximación marítima a partir del litoral sur y, más aún, resguardada de un eventual desembarco enemigo en sus proximidades, por ser protegida por los arrecifes rojizos que acompañan la línea costera, solo refuerza el entendimiento de que había una conexión intrínseca entre la “máquina” de conquista lusitana y el poderío eclesiástico.
Se pudo argumentar que el cuidado en construir los complejos arquitectónicos convento/ iglesia10 o el sanatorio/ iglesia11 en locales estratégicos tenía como justificativa la defensa de los propios religiosos, y posible creer que ese entendimiento no responde a la complejidad de las relaciones de poder que se establecían entre el espacio religioso – de las iglesias, conventos y otros predios ligados a la Iglesia Católica - y el propio Estado portugués y, en un ámbito mayor, la propia conquista.
Las ruinas de Nuestra Señora de Nazareth de Almagre podrían ser consideradas - a pesar de las diferencias estilísticas que mantienen en relación las otras iglesias barrocas paraibanas - como una señal de que había, la Capitanía Real de Paraíba, un cierto imbricamiento entre el poder temporal y la estructura eclesiástica dedicada a la conversación y catequesis de los indios y a la asistencia espiritual de los colonos12.
Una Ruina y Su Valor Como Monumento
Hoy, en pleno mundo globalizado, ciertos predios y locales históricos acostumbran ser valorizados mucho mas por tener un “potencial” económico a ser explorado por su representatividad en la construcción de una visión que abarque más la historia local, dejándose de lado detalles que, a largo plazo, pueden llevar a desvirtuar y a descaracterizar de conjuntos extremamente significativos del punto de vista cultural.
Por ejemplo: ¿ qué representa realmente o casi nada sin saber, concretamente, sobre la historia de la Iglesia y del Convento de Nuestra Señora de Nazareth de Almagre? Si hoy, ya en ruinas, aquel templo causa admiración única a quién lo vislumbre a partir de la autopista que liga las playas de Intermares y Pozo, en la ciudad de Cabedelo, próximo a la división con el municipio de João Pessoa, ¿qué decir que el efecto que debía producir sobre los indios que habitaban aquella localidad?

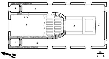
Figura 8 - Planta de la Iglesia de Nuestra Señora de Nazareth de Almagre.
Todas sus paredes, excepto las que cercan el altar mayor, estaban de pié en 1921.
Hoy, están erectas apenas las que aparecen grabadas en el croquis encima
(basado en Mello Neto & Mello, 2000).
LEGENDA: 1 - púlpito; 2 - altares laterales; 3 - altar-mayor; 4 - sacristía;
5 - corredores laterales; 6 - nave; 7 - cámaras (acceso al coro en el andar superior).
Al aproximarnos de sus paredes que mal se mantienen de pie y observar atentamente, los detalles de cantería que todavía resisten a la acción de la lluvia y del viento, se puede identificar, por entre las piedras y portales caídos en aquellos que todavía reposan erectos, la cristalización de un universo enigmático totalmente ajeno de los trópicos y, por consiguiente, mucho más próximo a los jesuitas, franciscanos y benedictinos de que a los indígenas que ellos pretendían convertir.
Esta imagen de arruinamiento se torna aun más impactante cuando se toma conocimiento de que la Iglesia de Nuestra Señora de Nazareth de Almagres resguardada por el Gobierno Federal desde 1938, época en que cerca del 90% de sus paredes todavía se erguían sobre el arenal de Playa de Pozo y dividían el paisaje con los coqueros y los cajueiros.
Siendo el registro material de una de las primeras ocupaciones sistemáticas de la localidad en que hoy está el municipio de Cabedelo, las ruinas de la Playa de Pozo tiene una importancia enorme para la construcción de una identidad histórica para los cabedelenses, rescatando su memoria y posibilitando una tentativa de vislumbre de parte del cotidiano de los que construyeron aquel monumento.
Si esa memoria y esa identidad pueden venir a ser aprovechadas para el establecimiento de una ruta turística histórica, con implicaciones económicas positivas para la ciudad y generación de empleos, se trata de una fase posterior. Antes de esto, es necesario que se desenvuelvan otras etapas, no menos importantes del punto de vista turístico: restaurar o consolidar el monumento ya resguardado, estudiarlo, comparar las versiones sobre su historia, discutir opiniones, planear su aprovechamiento, concienciar a la población del entorno, señalizar el local, revitalizar y fornecer calificación profesional a los que vengan, de echo, a trabajar en el local como guías o monitores de los visitantes.
Recientemente, se ha constatado que el turismo motivado por la búsqueda de atractivos culturales e históricos representa más del 80% de los viajes (Barretto, 2000: 21), ahí la creciente valorización económica de sitios, conjuntos, monumentos o lugares históricos. En ese sentido, el planeamiento turístico basado en el aprovechamiento del patrimonio cultural se debe preocupar con tres aspectos fundamentales: preservación de originalidad aliada a lo restaurado; adopción de políticas de preservación que pasen por la esfera pública y por la sociedad civil; y planeamiento en cuanto a la capacidad de carga que el bien patrimonial puede recibir, de modo que su conservación y reinserción en la vida cultural local se tornen posibles (Barretto, 2000: 78).

Figura 9 - Altar lateral izquierdo, nave de la Iglesia de
Nuestra Señora de Nazareth de Almagre, en foto de 1999.

Figura 10 - Pila de la sacristía, Iglesia de Nuestra Señora de Nazareth de Almagre.
Hoy esta pieza, y también la pared que la sustentaba entonces caídas sobre el terreno, siendo posible su montaje.
Foto de Walfredo Rodriguez, 1921.
El Aprovechamiento Turístico de Bienes Patrimoniales: Una Meta a Alcanzar
En los últimos años, muchos científicos sociales que se dedican al estudio del fenómeno turístico tiene atentado para el hecho de que se puede ser un motivador para "la existencia y rehabilitación de sitios y monumentos históricos, construcciones y monumentos" (Barretto, 2000: 32), al transformarse al espacio ocupado por bien patrimonial en un espacio también recreación y de vivencia cultural no solo para los turistas pero, especialmente, para los habitantes locales, pues así todo es posible en el proceso de restauración y revitalización no sería solamente con el objetivo de “venta” el patrimonio.
Al revés, al revitalizarse un monumento lo que se debe pretender, justamente, es fortalecer la memoria local y la identidad de los individuos que conviven con aquel bien patrimonial diariamente, de modo que le sea reinsertado en la vivencia cultural local.
En ese sentido, se torna necesaria una actitud diferenciada con relación a las ruinas de Almagre. Habiéndose tornado un monumento histórico literalmente “tumbado”, el conjunto de Playa de Pozo merece la atención redoblada, exactamente por tratarse de una construcción que se arruinó principalmente al correr del siglo XX. Hay, inclusive, registros de que durante la segunda mitad del siglo XIX sus paredes habían dado abrigo, como vivienda, a una familia de propietarios rurales de la región, perdiendo totalmente sus atribuciones eclesiásticas (Mello Neto & Mello, 2000: 14).
Segundo Françoise Choay (1996, 2001), un monumento solo adquiere status de "histórico" cuando la propia población que convive con el monumento lo atribuye esta calidad. Talvez sea posible considerar que la Iglesia de Almagre solo habría llegado a su situación actual justamente por tener su uso laicizado, o sea, por haber perdido su uso religioso y, por consiguiente, su interés histórico para los habitantes locales. ¿Qué se perdió en las ruinas de Almagre? ¿Qué debe ser rescatado antes que se piense en aprovechar tal bien patrimonial como un atractivo turístico? En una visión benjaminiana, podríamos afirmar que aquel monumento perdió su aura, su sacralización, al tornarse solamente una vivienda.
¿Cuál seria, entonces, la actitud diferenciada necesaria, en el caso específico de este monumento? Algunos estudios apuntan en sentido de que no basta la inversión de vultuosas cantidades, por parte del poder público o de la iniciativa privada, solamente al restaurar el arquitectónico del bien patrimonial. Es necesario hacer, principalmente, una inversión en el aspecto social e histórico, o sea, en el restablecimiento de una identidad local que tenga lazos uniendo aquel monumento:
"Primeramente, hay que promover un trabajo de promoción interna, ansiando el rescate del orgullo por el lugar. No se puede pensar en potencializar el turismo en lugar de que descrea de si mismo, que no tenga orgullo por que tiene o lo que es. Movilizar todos los actores de la ciudad y hacer por consiguiente acciones inmediatas, catalizadoras de la opinión pública son estrategias que vienen demostrando eficacia en algunos lugares." (Simão, 2001: 69)
Consideraciones Finales
Varios autores destacan la subutilización turística de los atractivos culturales en Brasil13, al contrario de lo que, usualmente, ocurre en países europeos o en América del Norte14. Cabe aquí destacar que la implantación de la actividad económica del turismo, por menor que sea la localidad, no debe implicar la expulsión de los moradores y, tampoco, una descaracterización acelerada de elementos que, a principio, constituían el propio atractivo cultural: "el turismo se incorpora para agregar valores y no para sustraerlos" (Simão, 2001: 69).
Entretanto de una actividad que sea sustentable, el turismo basado en atractivos culturales no puede prescindir de una amplia articulación entre las políticas de gestión pública y los intereses de iniciativa privada, bien como del establecimiento de pacería con la población, potencializando significativamente la calidad de vida local.
Por fin, no basta intuir o vislumbrar las capacidades de aprovechamiento turístico de una determinada localidad. Se torna necesario, primordialmente, el desarrollo de estrategias coherentes en el sitio receptor, abarcando tanto el conocimiento profundo de la oferta como de la demanda por productos turísticos, o sea, dos atractivos en potencial que por ventura existían en aquel lugar y, también, del perfil del turista que puede venir a frecuentarlos.
De este modo, el turismo cultural puede ser visto tanto como "un posibilitador de la preservación de los valores culturales y de la calidad de vida local" (Simão, 2001: 75), así como un agente que potencié la reapropiación de bienes patrimoniales de una determinada localidad por sus habitantes. Parece ser esta la principal calidad turística que puede venir a consolidarse en Cabedelo, en lo que se refiere a las ruinas de Almagre: fomentar no sólo la economía local sino también, especialmente, la descubierta de una identidad latente, que talvez repose fondeada a la orilla de los arrecifes rojizos de muelles naturales de la Playa de Pozo, contemplando las pocas paredes que restan de la Iglesia de Nuestra Señora de Nazareth.
Bibliografia
BARBOSA, Cônego Florentino. Monumentos históricos e artísticos da Paraíba. 2. ed. (facsimilar). João Pessoa: Conselho Estadual de Cultura/ SEC/ A União, 1994 [1953] (Col. “Biblioteca Paraibana”, vol. II).
BARRETTO, Margarita. Turismo e legado cultural. Campinas: Papirus, 2000 (Col. “Turismo”).
BENJAMIN, Walter. Magia e técnica, arte e política. Traducción de Sergio Paulo Rouanet. 7. ed. São Paulo: Brasiliense, 1994.
BENI, Mário Carlos. Análise estrutural do turismo. São Paulo: SENAC, 1998.
CHOAY, Françoise. L'allégorie du patrimoine. 2. ed. Paris: Seuil, 1996.
______________. A alegoria do patrimônio. Traducción de Luciano Vieira Machado. São Paulo: Editora da UNESP/ Estação Liberdade, 2001.
HERCKMANS, Elias. Descrição geral da Capitania da Paraíba. Presentación de Wellington Aguiar y notas de Marcus Odilon Ribeiro Coutinho. João Pessoa: A União Editora, 1982 [1639].
LE GOFF, Jacques. História e memória. Traducción de Irene Ferreira, Bernardo Leitão y Suzana Ferreira Borges. 3. ed. Campinas: Editora da UNICAMP, 1994.
MELLO, José Octávio de Arruda. História da Paraíba: lutas e resistência. João Pessoa: Conselho Estadual de Cultura/ SEC/ A União, 1994 (Col. “Biblioteca Paraibana”, vol. VI).
Mello Neto, Ulysses P. & Mello, Virgínia P. A igreja de Nossa Senhora de Nazaré (ruínas do Almagre). João Pessoa: s.r., 2000. Trabalho não publicado.
Oliveira, Carla Mary S. Arte, religião e conquista: os sistemas simbólicos do poder e o Barroco na Paraíba. João Pessoa: PPGS-UFPb, 1999 (Disertación de Maestría en Sociología).
___________________. Imagens e traçados: a Parahyba dos primeiros séculos. Caos - Revista Eletrônica de Ciências Sociais. João Pessoa, Curso de Ciências Sociais, Universidade Federal da Paraíba, ano 1, n. 1, abr. 2000. Publicación electrónica. Disponible en: <http://chip.cchla.ufpb.br/caos/01-oliveira.html>.
RODRIGUES, Marly. "Preservar e consumir: o patrimônio histórico e o turismo". In: FUNARI, Pedro Paulo & PINSKY, Jaime (orgs.). Turismo e patrimônio cultural. São Paulo: Contexto, 2001 (Col. “Turismo Contexto”).
RODRIGUEZ, Walfredo. Roteiro sentimental de uma cidade. 2. ed. facsimilar. João Pessoa: CEC-SEC/ A União, 1994 [1962] (Col. “Biblioteca Paraibana”, vol. I).
SIMÃO, Maria Cristina Rocha. Preservação do patrimônio cultural em cidades. Belo Horizonte: Autêntica, 2001.
SWARBROOKE, John. "Turismo cultural". In: SWARBROOKE, John. Turismo sustentável - Vol. V: turismo cultural, ecoturismo e ética. Traducción de Saulo Krieger. São Paulo: Aleph, 2000.
ZENAIDE, Heratiano. As ruínas da Praia do Poço. Revista do Instituto Histórico e Geográfico Paraibano. João Pessoa, Instituto Histórico e Geográfico Paraibano, n. 10, 1946, p. 129-131.
Fuentes de las Ilustraciones
Figuras 1, 2, 4a, 6, 7 e 9
OLIVEIRA, Carla Mary S. Arte, religião e conquista: os sistemas simbólicos de poder e o Barroco na Paraíba. João Pessoa: PPGS-UFPb, 1999 (Disertación de Maestría en Sociología).
Figuras 3, 4, 5 e 10
Mello Neto, Ulysses P. & Mello, Virgínia P. Igreja de Nossa Senhora de Nazaré (ruínas do Almagre). João Pessoa: s.r., 2000. Trabajo no publicado.
Figura 8
Ilustración de Carla Mary S. Oliveira, 2002, basada en Mello Neto & Mello (2000).
Web Sites Consultados
IPHAN - Instituto do Patrimônio Histórico e Artístico Nacional.
Disponible en: <http://www.iphan.gov.br>. Acceso en: 17 ago. 2001.
New Advent Catholic Encyclopædia.
Disponible en: <http://www.knight.org/advent/>. Acceso en: 12 mar. 1999.
Notas
1 Del árabe al-magrâ: arcilla rojiza usada en la construcción civil. Los portugueses también usaban el termo para nombrar arrecifes rojizos existentes en la costa del Nordeste de Brasil.
2 Fundada en 1539 por Santo Ignacio de Loyola, y reconocida por el Papa Paulo III en la bula Regimini Formula Ecclesia, del 27 de setiembre de 1540, la Compañía de Jesús se diferenciaba de las otras ordenes religiosas existentes en el inicio de la edad Moderna por su organización de inspiración militar y, también, por una serie de normas establecidas por su fundador, como la inexistencia de un hábito específico para sus miembros; a la no manutención de un coro musical regular en sus cuadros; la prohibición a sus religiosos, a través de votos específicos, de aceitar privilegios o mayordomías eclesiásticas; la obligación de actuar en acciones misionarias en el exterior, sobre orden Papal; la preferencia por la catequesis y la educación de los jóvenes de todas las clases sociales, incluyéndose ahí la instrucción de los ignorantes y de los pobres y el ministerio de los sacramentos a los enfermos y prisioneros. Contrariamente aquello que normalmente se acredita, la orden no fue creada con la intención específica de oponerse al Protestantismo. EN verdad, cuando Santo Ignacio comenzó a devotar su vida a la Iglesia, en 1521, difícilmente ya habría oído hablar de los reformistas protestantes de Europa septentrional (New Advent Catholic Encyclopædia).
3 New Advent Catholic Encyclopædia.
4 El único edificio concluido en la época de la expulsión era el de la iglesia.
5 Término de origen tupí: "agua blanca".
6 Misa celebrada por abades; en este caso, los benedictinos.
7 Iglesia de San Francisco/ Convento de San Antonio e Iglesia y Hospicio de Nuestra Señora de Guia.
8 New Advent Catholic Encyclopædia.
9 El reverso de la foto de Rodriguez posee el siguiente texto: "Ruinas de la Iglesia de Nuestra Señora de Nazareth. foto realizada de la nave de la iglesia para la capilla mayor, mostrando la otra fase del arco. No existiendo más el trono, la foto focalizó la fuente o lavatorio de la sacristía que se encuentra ubicada al fondo de la iglesia. Se ve [sic] las dos puertas laterales, entradas para la nave; las dos tribunas por encima de las puertas, los dos altares laterales en uno de los lados la base del púlpito. Foto Walfredo Rodriguez. texto J.D. Santos" (Mello Neto & Mello, 2000).
10 Nuestra Señora de Nazareth de Almagre, San Benito y San Antonio/ San Francisco.
11 Nuestra Señora da Guia.
12 Aclaro más específicamente esta hipótesis en el tercer capítulo de mi Disertación de Maestría, intitulada Arte, religión y conquista: los sistemas simbólicos del poder y el Barroco en Paraíba, defendida por el Programa de Post-Graduación en Sociología de la Universidad Federal de Paraíba (Campus I - João Pessoa) el 06 de agosto de 1999, sobre orientación del Prof. Dr. Ariosvaldo da Silva Diniz.
13 A ese respecto, vea Beni (1998: 87), Simão (2001: 68), Barretto (2000: 76), y Rodrigues (2001: 15-24).
14 Ver Swarbrooke (2000).
* Pesquisidora de LABTUR-IESP y Profesora de la Graduación en Turismo de IESP - Instituto de Educación Superior de Paraíba. Historiadora, Maestre en Sociología, Doctoranda en Sociología por el Programa de Post-Graduación en Sociología de la Universidad Federal de Paraíba. E-mail: <cms-oliveira@uol.com.br>
Buscar en esta seccion :

